
产品简介:
WJ41H/WJ41Y手动德标波纹管截止阀适用于工作压力1.6~4.0MPa,工作温度-29~350℃的石油、化工、制药、化肥、电力行业等各种的工况上,切断或接通调节管路介质。采用先进的金属波纹管密封技术制造,高性能金属波纹管,波纹管密封截止阀采用波纹管密封的设计,完全消除了普通阀门阀杆填料密封老化快易泄露的缺点,不但提高了使用能源效率,增加了生产设备的安全性,减少了维修费用及频繁的维修保养,还提供清洁安全工作环境。广泛应用于:石油化工、化纤纺织、塑料造纸、电力钢铁、印染橡胶、食品等工业。
产品特点:
1、产品结构合理、密封可靠
2、密封面堆焊Co基硬质合金,耐磨、耐腐、抗摩擦性能好、使用寿命长
3、阀杆调质及表面氮化处理,有良好的抗腐和抗摩擦性能
4、低件材质及法兰、堆焊端尺寸可根据实际工况或用户要求合理选配,满足各种工程需要
5、阀芯可根据需要做承切断型和调节型
产品执行标准
结构形式:BB-BG-0S&Y
设计标准:DIN3356
结构长度:DIN3202
连接法兰:DIN2543-2545、HG20596
试验和检验:DIN3230
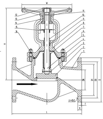
产品结构尺寸图:
截止阀安装与使用注意事项:
截止阀安装注意事项
1.安装施工必须小心,切忌撞击脆性材料制作的截止阀。 2.安装前,应将截止阀作一检查,核对规格型号,鉴定有无损坏,尤其对于阀杆。还要转动几下,看是否歪斜,因为运输过程中,很易撞歪阀杆。还要清除阀内的杂物。 3.截止阀起吊时,绳子不要系在手轮或阀杆上,以免损坏这些部件,应该系在法兰上。 4.对于截止阀所连接的管路,一定要清扫干净。可用压缩空气吹去氧化铁屑、泥砂、焊渣和其他杂物。这些杂物,不但容易擦伤截止阀的密封面,其中大颗粒杂物(如焊渣),还能堵死小截止阀,使其失效。
截止阀使用注意事项:
1.200℃以上的高温阀门,由于安装时处于常温,而正常使用后,温度升高,螺栓受热膨胀,间隙加大,所以必须再次拧紧,叫做"热紧",操作人员要注意这一工作,否则容易发生泄露。 2.天气寒冷时,水阀长期闭停,应将阀后积水排除。汽阀停汽后,也要排除凝结水。阀底有如丝堵,可将它打开排水。 3.非金属截止阀,有的硬脆,有的强度较低,操作时,开闭力不能太大,尤其不能使猛劲。还要注意辟免物件磕碰。 4.新截止阀使用时,填料不要压得太紧,以不漏为度,以免阀杆受压太大,加快磨损,而又启闭费劲。





